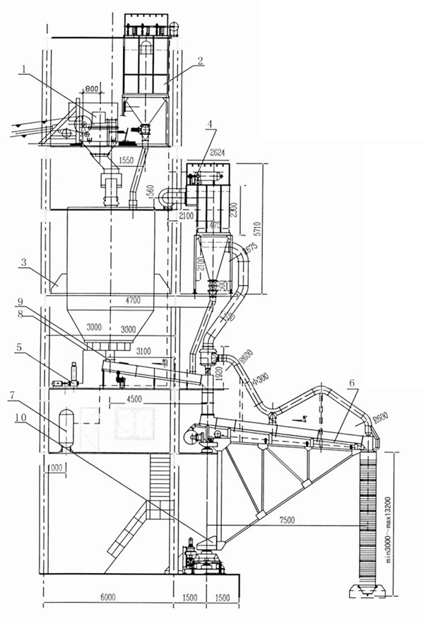
船舶散装机(装船机)
丁宝勤 13906276368(技术)
电话:0513-88400999 传真:0513-88400998 邮箱:jszk@vip.163.com
本机具有料位控制灵敏、出料流畅阻力小等特点。该产品还可用于建材系统,其它行业以及冶金、煤炭化工部门粉粒物料装车、装船。
The system is conveyed powder material from side silo to bulk loading equipment.
It is characterized by nimble control, smooth discharge and small resistance etc.
Also apply in building material system, other industry, metallurgi¬cal, coal and chemical industry to load and ship powder material.

9 CSZ-09卸料系统
Discharge system
8 CSZ-08罗茨风机至仓管路
Pipeline from roots fan to silo
7 CSZ-07压缩空气管路系统
Compressed air pipeline system
6 CSZ-06船用散装机
Bulk loader of ship
5 CSZ-05罗茨风机
Roots fan
4 CSZ-04船用收尘器系统
Dust filtering system of ship
3 CSZ-03计量系统
Measuring system
2 CSZ-02库顶收尘系统
Top silo dust filtering system
1 CSZ-01库顶进料系统
Top silo inlet system













.jpg)


